Image 1 Image 2 Image 3 Image 4 Image 5 Image 6 Image 7 Image 8 Image 9 Image 10 Image 11 Image 12 Image 13 Image 14 Image 15 Image 16 Image 17 Image 18 Image 19 Image 20 Image 21 Image 22 Image 23

23 фото
Скачайте презентацию комплекса в 1 клик
book Скачать презентацию в PDF 5.11 MB, время скачивания 3 секунд

Квартира с 3-мя спальнями, лот 295632

447 000 000 ₽
2 202 000 рублей за м2
5 458 000 $
27 000 $ за м2
4 654 000 €
23 000 € за м2
$
этаж: 1 из 7
площадь: 203 м2
отделка: С отделкой
опции:

панорамные окна
патио

Описание комплекса
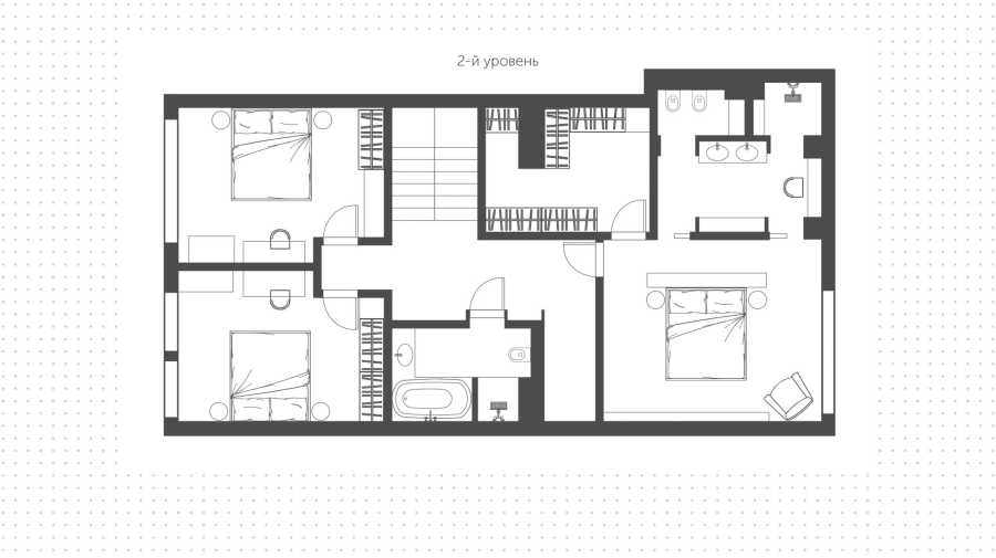
Двухуровневая квартира со своим патио в комплексе премиум-класса «Литератор» в Хамовниках. Просторная квартира общей площадью 203 м² расположена на 1-м этаже. Высокие потолки, много естественного света. Панорамные окна в пол с видом в приватный двор. Возможная планировка первого уровня: гостиная, кабинет, санузел, гардеробная, холл. На втором уровне можно спланировать мастер-спальню со своей ванной комнатой и гардеробной, 2 спальни, ванную комнату, холл.
Брокеры объекта:
Татьяна Булавкина
Татьяна Булавкина
Брокер
Ирина Егорова
Ирина Егорова
Руководитель
Александр Дубинин
Александр Дубинин
Брокер
Скачайте презентацию комплекса в 1 клик
book Скачать презентацию в PDF 5.11 MB, время скачивания 3 секунд
Похожие объекты
Квартира с 1-й спальней, 175 м2
ЖК Barkli Plaza
Парк Культуры
447 485 000 ₽
5 464 000 $
4 659 000 €
Квартира с 3-мя спальнями, 157 м2
449 960 000 ₽
5 494 000 $
4 685 000 €
Таунхаус, 91 м2
446 780 000 ₽
5 455 000 $
4 651 000 €